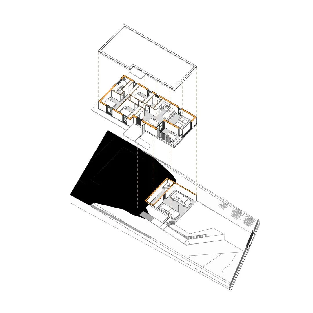
Este proyecto se sitúa en una parcela con una pronunciada pendiente, y con vistas privilegiadas hacia la ría. Estas condiciones definen tanto la implantación como la organización espacial de la vivienda: La propuesta responde a esta topografía mediante una volumetría clara y rotunda, donde el volumen principal se posa sobre un basamento semienterrado que alberga el garaje y los espacios de servicio.
La vivienda se desarrolla en una única planta principal, optimizando la funcionalidad y la accesibilidad. El programa se organiza en dos zonas claramente diferenciadas: una zona de día abierta y orientada hacia las vistas, y una zona de noche más recogida, donde se ubican los dormitorios y baños.
El espacio de estar, comedor y cocina se concibe como un ambiente continuo, bañado por luz natural y en conexión directa con el exterior. Las grandes ventanas y la apertura hacia la terraza permiten enmarcar el paisaje y prolongar visualmente el interior hacia la ría.
En contraposición, la fachada más cerrada hacia el acceso se protege mediante un sistema de lamas verticales metálicas que filtran la luz y aportan privacidad, generando un juego de luces y sombras que evoluciona a lo largo del día. Este recurso, junto con el porche de entrada, construye una transición amable entre el exterior y el interior.
Materialmente, la vivienda combina la pureza del volumen blanco con paños revestidos en porcelánico, y rematándose con detalles metálicos en color oscuro. Esta paleta refuerza la identidad contemporánea del conjunto y su integración en el entorno.
El sistema constructivo modular ha permitido optimizar los tiempos de ejecución, garantizar un alto nivel de calidad en los acabados y reducir el impacto de la obra en el entorno. El resultado es una vivienda eficiente, luminosa y plenamente adaptada a su lugar.











